Home Staging
Servicio Turnkey
Proyectos
Quiénes somos
English
Home Staging
Servicio Turnkey
Proyectos
Quiénes somos
English
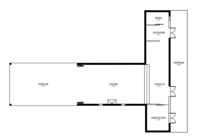
ESTUDIO MARRATXI _
Un "soft staging" ha dado contexto a los ambientes de este estudio de nueva construcción.
¿HABLAMOS?
hola@casamasmallorca.com
+ 34 635234938
Instagram
Pinterest